Внимание, цены снижены!
Актуальные цены узнавайте по телефону, в мессенджерах или оставив заявку на сайте!

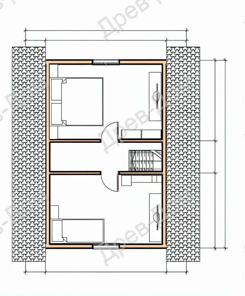
Характеристики проекта

66.2 м2
3

1

1 этаж

6х7

18 дней
Под УСАДКУ
Под КЛЮЧ
Брус естественной влажности (усадка 4-6 месяцев, 25-30% влажности)
Обычный 150х150

968000 руб.
Обычный 150х200
1073000 руб.
Профиль 145х145
1125000 руб.
Профиль 145х195
1264000 руб.
Брус камерной сушки (усадка 1-2 месяцев, 7-12 % влажности)
Профиль 140х140
1233000 руб.
Профиль 140х190
1428000 руб.
Профиль 190х190
1613000 руб.
Кровля
Металлочерепица
185000 руб.
Ондулин
136000 руб.
Рубероид
0 руб.
Фундамент
Свайно-винтовой
174000 руб.
Ленточный
587000 руб.
ЖБИ-сваи
211000 руб.
Брус камерной сушки (усадка 1-2 месяцев, 7-12 % влажности)
Профиль 140х140
1855000 руб.
Профиль 140х190
2093000 руб.
Профиль 190х190
2298000 руб.
Кровля
Металлочерепица
185000 руб.
Ондулин
136000 руб.
Фундамент
Свайно-винтовой
174000 руб.
Ленточный
587000 руб.
ЖБИ-сваи
211000 руб.
Габариты: Вы можете сами заказать дом нужного Вам размера. Или воспользоваться типовым решением.
Материалы: Мы используем при строительстве только качественные проверенные материалы. У нас есть своё собственное производство пиломатериала.
Фундамент: Мы можем предложить Вам на выбор несколько вариантов фундамента. Всё зависит от геодезических изысканий или Вашего желания и бюджета.
Весь комплект п/материала соответствует ГОСТ 8486-86.
Все работы проводятся согласно существующим СНиПам.
1. Предоплата при заключении договора – 10-%.
2. После доставки комплекта материала – оплата за материал 65%.
3. После сдачи дома – оплата за монтаж дома 25%.
Описание дома "ПОД УСАДКУ"
Описание дома "ПОД КЛЮЧ"
Условия сотрудничества
Входит в стоимость.
Не входит в стоимость дома, рассчитывается отдельно, в зависимости от грунта и пожеланий Заказчика
Гидроизол в один слой.
Выполняется из нестроганного бруса 150 х 100 мм, 150 х 150 мм, 150 х 200 мм, в зависимости от толщины каркаса.
Выполняются из бруса 100 х 150 мм с шагом не более 59 см.(под утеплитель)
Обрезная доска 25х150 мм.
Джутовое льноволокно прокладывается в пазах бруса в 1 слой (за исключением внутренних перегородок).
В "теплый угол".
В зависимости от выбранной комплектации. Собирается на березовые нагеля.
Профилированный брус 140х90 мм. или не обрезной брус 150х100 мм.
Доска 50х150 мм (выполняются с шагом не более 600 мм под утеплитель).
Брус 100х150 мм.(в зависимости от проекта).
При наличии подъема стен второго этажа, выполнены из бруса. На мансардном этаже фронтоны - имитация бруса;
Обрезная доска 25 х 150 мм.
Доставка в радиусе 600 км. от г. Чухлома, Костромская обл. осуществляется бесплатно!
Не входит в стоимость, оговаривается отдельно с заказчиком.
Делаются на втором этапе строительства и в стоимость не входят. Второй этап строительства производится после усадки дома через 6-8 месяцев.
Из бруса 150х100мм., Профилированный брус 145х90мм. Перегородки на мансардном этаже каркасные и делаются на втором этапе строительства. Перегородки второго этажа – несущие, делаются на полутораэтажном и двухэтажном доме брус 150х100мм. Профилированный 145х90мм. (возможно все перегородки сделать из бруса по желанию заказчика)
Профилированный или необрезной брус 145х145 мм(150х150 мм), 145х195 мм(150х200 мм), в зависимости от выбранной комплектации. Собирается на деревянные, берёзовые нагели
Первого этажа - 2,70 м
Второго этажа-,2,5 -2,6 м. при наличии мансарды, второго этажа , полуторного этажа .
В проекты можно вносить любые изменения. Если у вас уже есть проект, пришлите его нам
и мы рассчитаем стоимость его изготовления бесплатно.
Входит в стоимость.
Не входит в стоимость дома, рассчитывается отдельно, в зависимости от грунта и пожеланий Заказчика.
Гидроизол в один слой.
Выполняется из нестроганного бруса 150 х 100 мм, 150 х 150 мм, 150 х 200 мм, в зависимости от толщины каркаса.
Выполняются из бруса 100 х 150 мм с шагом не более 59 см.(под утеплитель)
Обрезная доска 25х150 мм.
Шпунтованная доска толщиной 36 мм.
Рулонного типа KNAUF, URSA, ISOVER толщиной 100 мм (полы, потолки, мансарда).
Изоспан либо аналоги в один слой.
Профилированный брус камерной сушки 140х140 мм, 140х190 мм, 190х190 мм в зависимости от выбранной комплектации. Собирается на березовые нагеля.
Джутовое льноволокно прокладывается в пазах бруса в 1 слой (за исключением внутренних перегородок).
В "теплый угол".
Профилированный брус камерной сушке 140х90 мм.
Каркасно-щитовые (обшиваются с обеих сторон сухой вагонкой класса "В").
Вагонка камерной сушки класса "В".
Вагонка камерной сушки класса "В".
Первого этажа - 2,5 м
Второго этажа-,2,5 -2,6 м. при наличии мансарды, второго этажа , полуторного этажа .
Доска 50х150 мм (выполняются с шагом не более 600 мм под утеплитель).
Брус 100х150 мм.с шагом 600м.
Обшиваются вагонкой класса "В".
Цвет покрытия на выбор заказчика
Обрезная доска 25 х 150 мм.
Устанавливаются в дверные и оконные проёмы.
Металлическая.
Филенчатые размером 80х200 см.
Деревянные двустворчатые с двойным остеклением и врезными ручками (1м х 1,2м).
Деревянная с перилами.
В проекты можно вносить любые изменения. Если у вас уже есть проект, пришлите его нам
и мы рассчитаем стоимость его изготовления бесплатно.
Перед началом строительства мы рекомендуем Вам ознакомиться с некоторыми условиями:
1. Порядок заключения договора.
Для того, чтобы приступить к строительству Вашего сооружения необходимо заключить "Договор подряда". Именно данный договор регулирует взаимоотношения между нашей компанией и Заказчиком.
Для заключения договора, необходимо:
Сообщить нам о своем желании по любым удобным для Вас каналам связи.
Предоставить документы, подтверждающие право собственности на земельный участок, на котором будут происходить строительные работы.
Предоставить документ, разрешающий строительство на данном участке (если такие документы обязательны, в соответствии с действующими в настоящий момент нормативно-правовыми актами).
Возможно 2 варианта подписания договора:
Первый вариант, подписание договора производится по электронной почте, затем оригинал договора подписывается при начале строительства (на вашем участке).
Второй вариант, при личной встрече на участке либо на заранее обговоренной территории.
2. Условия для работы бригады:
Заказчик должен подготовить подъездные пути к участку строительства.
На участке, где будет происходить строительство, должен быть бесперебойный источник электроэнергии (разметка 220 вольт). При его отсутствии, мы предоставляем в аренду генератор, заправка за счет средств Заказчика по мере потребления заправочных материалов.
Желательно наличие питьевой воды.
Так же необходимо обеспечить условия для проживания бригады из двух или трех человек, за это отвечает Заказчик. Наша компания может помочь в выполнении данной задачи, предоставив бытовку 2х3 метра, которая после окончания строительства остается на участке. В дальнейшем её, как правило, используют как подсобное помещение.
3. Взаиморасчёты по договору.
Оплата по договору происходит наличными, либо банковским переводом на счет Подрядчика. Способ оплаты согласовывается сторонами на этапе заключения договора.
Вы оставляете на нашем сайте заявку или звоните по номеру +7953-666-35-62 (Евгений)
Мы делаем расчёт стоимости по строительству дома, учитывая все ваши запросы и пожелания, естественно с учётом актуальной цены и отправляем его вам
Согласовываем и при необходимости вносим в проект дома какие либо изменения. Фиксируем стоимость строительства.
Договор на строительство заключаем дистанционно (оригинал договора подписываем при доставке материалов) или на Вашем участке, куда наш представитель приезжает совершенно бесплатно. Предоплата при заключении договора 10%. Договор заключен!
Возведение фундамента на Вашем участке осуществляется нашими монтажниками в течение 1 дня (винтовые сваи,бетонно-забивные сваи) или 5 - 9 дней (ленточно-монолитный)
Доставка строительных материалов для возведения дома производится в указанный в договоре срок. Оплата 70% от общей стоимости.
Бригада опытных, ответственных строителей разгружает и аккуратно складирует материал на Вашем участке. После этого незамедлительно приступает к возведению дома.
По истечении определенного срока (7 - 30 дней), строители заканчивают монтаж, ежедневно делая фото отсчёты процесса строительства дома.
Вы принимаете работы, подписывается "Акт сдачи-приемки выполненных работ по строительству". Оплата оставшейся части по договору. Торжественная передача объекта недвижимости Вам!
DrevDom
ИНН:442901088498
ОГРН:324440000011790